Enter your address or APN to check if this home fits on your property
Enter your property street address or APN
Construction
Kitchen
Exterior
Bedroom
Interior
Mechanical
Bathroom
Get started with Frontier Land & Home
Find, design, and order your next home in a few clicks.
Dealer License #:
Images of homes are solely for illustrative purposes and should not be relied upon. Images may not accurately represent the actual condition of a home as constructed, and may contain options which are not standard on all homes.
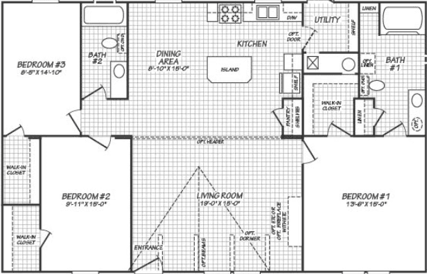
3 Bed | 2 Bath | 1,472 Sq. Ft. | 30' 8" x 48'
3 Bed | 2 Bath | 1,488 Sq. Ft. | 26' 8" x 56'
3 Bed | 2 Bath | 1,493 Sq. Ft. | 26' 8" x 56'