Mechanical
Enter your address or APN to check if this home fits on your property
Enter your property street address or APN
Construction
Exterior
Interior
Get started with Frontier Land & Home
Find, design, and order your next home in a few clicks.
Dealer License #:
Images of homes are solely for illustrative purposes and should not be relied upon. Images may not accurately represent the actual condition of a home as constructed, and may contain options which are not standard on all homes.
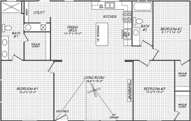
3 Bed | 2 Bath | 1,717 Sq. Ft. | 32' 5" x 56'
3 Bed | 2 Bath | 1,717 Sq. Ft. | 5' x 5'
3 Bed | 2 Bath | 1,600 Sq. Ft. | 26' 8" x 60'